Opis
Lokal usługowy 130 mkw
Magazyn Hala - Zabłocie
Mamy przyjemność przedstawić Państwu ofertę najmu lokalu usługowego w Krakowie w dzielnicy Kliny.
Lokal usługowy
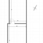
Powierzchnia 32 mkw
Wysokość pomieszczenia 287 cm
Jedno wejście frontowe
Dodatkowo – pomieszczenie biurowe, sanitarne, socjalne
Ogrzewanie elektryczne
Wentylacja
Dodatkowe informacje
Rolety zewnętrzne
Depozyt dwumiesięczny
Zaplecze socjalne
Internet światłowód
Alarm – instalcja
Cicha lokalizacja
Koszty
cena najmu; 2300 brutto / miesięcznie
dodatkowy koszt ; prąd, woda, wywóz śmieci
Serdecznie zapraszamy do prezentacji
Grupa ENPE Properties
enpeproperties.pl
732 779 737





Charakterystyka nieruchomości
- Magazyn Hala
- 3 pokój
- 1 łazienka
- 3 Rooms
- Built 1990
- Powierzchnia użytkowa 32 m²
- Toaleta
- Internet szerokopasmowy
- O







